Trilocale in vendita

Monreale, Via Umberto I
€ 117.000
3 locali 3 locali
116 Mq 116 Mq
2 bagni 2 bagni

Trilocale in vendita

Monreale, Via Umberto I

Descrizione annuncio

Appartamento con vista su Conca d'Oro e Cattedrale
Spazi generosi, luce naturale e grande potenziale nel cuore della città

In via Umberto I, a soli 500 metri dal celebre Duomo di Monreale patrimonio UNESCO, proponiamo in vendita un ampio appartamento di 116 mq situato al secondo piano seminterrato di un edificio residenziale degli anni Settanta. Non lasciarti ingannare dal livello: grazie alla conformazione degli spazi e agli affacci esterni, l'immobile gode di una luminosità sorprendente e di una piacevole ariosità che lo rendono unico nel suo genere.

Uno spazio dalle mille possibilità
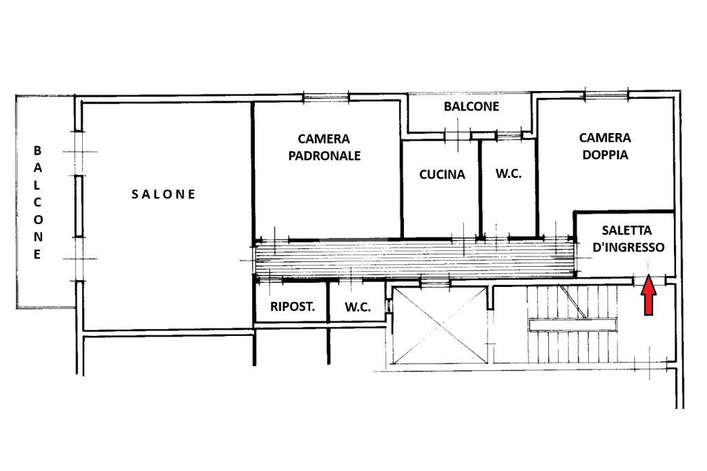
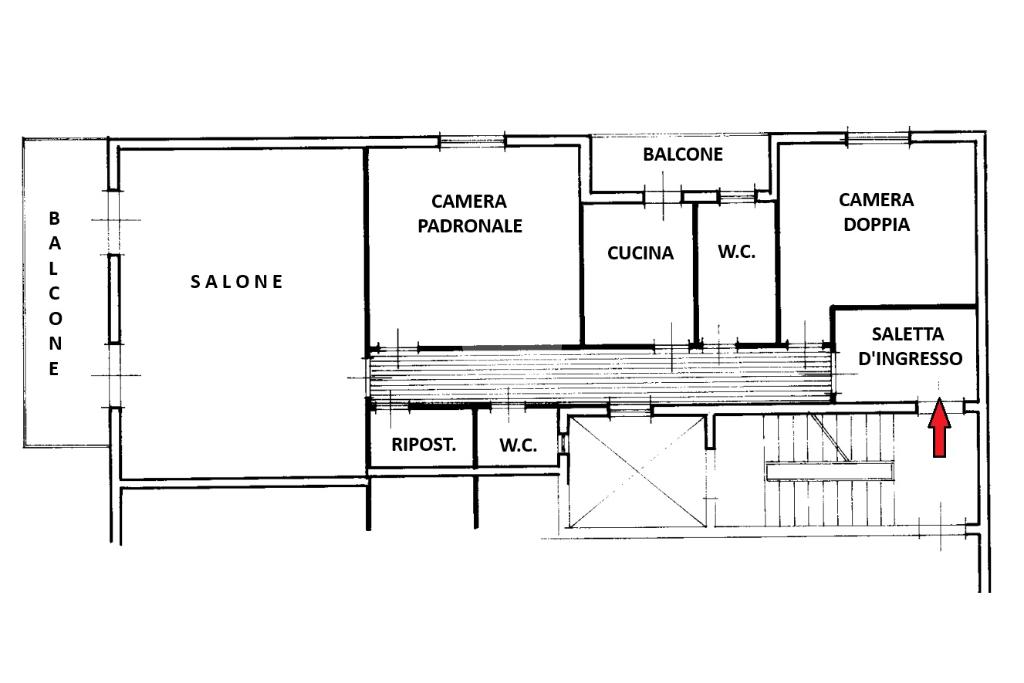
L'appartamento si sviluppa con una distribuzione interna funzionale e versatile: saletta d'ingresso, corridoio, camera doppia, bagno con vasca, cucinotto con balcone coperto, camera matrimoniale, secondo bagno, ripostiglio e un ampio salone doppio con accesso a un balcone panoramico da cui si gode di una vista mozzafiato sulla Conca d'Oro e sul Duomo di Monreale – uno scenario che cambia con la luce del giorno e regala emozioni uniche.

Potenziale da valorizzare
Le finiture sono quelle originali dell'epoca – pavimenti in segato di marmo e ceramica, infissi in legno con vetro singolo, tapparelle in plastica – e gli impianti idrico ed elettrico necessitano di adeguamento. L'immobile non dispone attualmente di riscaldamento, ma la zona è servita dalla rete del gas metano, il che consente di realizzare un impianto autonomo senza particolari oneri.

Una ristrutturazione su misura
Con 116 mq di superficie commerciale (111 mq al netto delle aree scoperte), questo appartamento rappresenta una tela bianca su cui disegnare la casa dei propri sogni. L'ampia metratura, la posizione strategica a due passi dal Duomo, la vista panoramica, la flessibilità distributiva degli ambienti e la possibilità di personalizzare gli impianti e le finiture lo rendono particolarmente adatto a chi cerca un immobile da trasformare secondo i propri gusti.

Perché sceglierlo
- Spazi ampi e ben distribuiti
- Vista panoramica
- Ottima luminosità nonostante il livello seminterrato
- Zona servita da gas metano
- Grande potenziale di rivalutazione

SERVIZIO FOTOGRAFICO IN ALLESTIMENTO: PRESTO NUOVE FOTO E VIRTUAL TOUR 360°

Scopri di più
Per informazioni o per fissare un sopralluogo, contattaci:
091 640 5576 - 338 567 4598 (anche WhatsApp)

Mostra tutto

Nelle vicinanze

Trasporto pubblico Trasporto pubblico
Ex Stazione di Baida
Ex Stazione di Baida
2,9 Km
Fontana del Drago - Cannolicchio
Fontana del Drago - Cannolicchio
100 m
Fontana del Drago - Palermo
Fontana del Drago - Palermo
130 m
Scuole Scuole
Liceo classico Emanuele Basile
710 m
Liceo scientifico Emanuele Basile
720 m
Scuola elementare
870 m
Istituto Statale d'Arte per il Mosaico
1,3 Km
Vittorino da Feltre
2,2 Km
Farmacia Farmacia
Farmacia Glorioso
530 m
Farmacia
620 m
Farmacia Pedone
830 m
Farmacia Accetta
1,1 Km
Farmacia G. Calì
2,3 Km
Ospedali Ospedali
Ospedale G. F. Ingrassia
1,6 Km
Supermercati Supermercati
Panificio Tusa
900 m
Conad
1,6 Km
Cerrefour
2,7 Km
Negozi Negozi
Termini Tommaso
540 m
Panificio Campanella
820 m
Negozi
1,4 Km
Conad
1,8 Km
Pizzo Simona
1,8 Km
Bar Bar
Bar del Sole
520 m
Ristoranti Ristoranti
Piccolo Rifugio
470 m
Peper's
500 m
Termini Tommaso
540 m
Taverna del Pavone
570 m
La Quercia
630 m
Mostra tutto

Caratteristiche

Rif.:
61195169
Piano:
-2 di 4 (Piano seminterrato)
Balconi:
2
Camere da letto:
2
Arredamento:
Assente
Condizionamento:
Assente
Mostra tutto
Prezzo Prezzo
€ 117.000
Rata mutuo Rata mutuo
€ 552 / mese
Spese annue Spese annue
€ 480
Proponi il tuo prezzoProponi il tuo prezzo
Immobile valutato con T·Valuta

Classe Energetica

G
G
G
G
G
G
G
G
G
EP globale rinnovabile:
198.98 kW h/m² anno
EP invernale del fabbricato:
EP estiva del fabbricato:
Anno di costruzione:
1963
Riscaldamento:
Assente

Ti interessa visionare l'immobile?

Fissa un appuntamento  Fissa un appuntamento

Richiedi informazioni

Clicca su Leggi per aprire l'informativa
* Questi campi sono obbligatori

Calcola il tuo mutuo

Semplice e senza impegno
Anticipo

( % )
Mutuo

( % )

pochi semplici passi

inserisci i tuoi dati
Questionario completato
Grazie per aver richiesto un appuntamento senza impegno con un nostro Consulente del Credito e Assicurativo.

Hai inserito correttamente tutti i dati necessari e a breve riceverai una e-mail con un link da convalidare per inviare i tuoi dati.
Affiliato
Studio G.m. Monreale Sas
Via Roma, 47 90046 Monreale (PA)

Il nostro staff


  • Maria Stella Pedivellano
    Affiliata

  • Giancarlo Ferrante
    Responsabile
Via Roma, 47 90046 Monreale (PA)
Zona: Monreale
Mostra su mappa
Orari: lunedì-sabato 09:00/18:00 ; domenica 10:00/12:00
Affiliato
Studio G.m. Monreale Sas
Via Roma, 47 90046 Monreale (PA)

2026 Tecnocasa Franchising S.p.A. - P. IVA 08365160152 - Via Monte Bianco 60/A 20089 Rozzano (MI). Ogni agenzia ha un proprio titolare ed è autonoma. Privacy policy | Policy utilizzo | Cookie policy